Listing # 73402672

Description

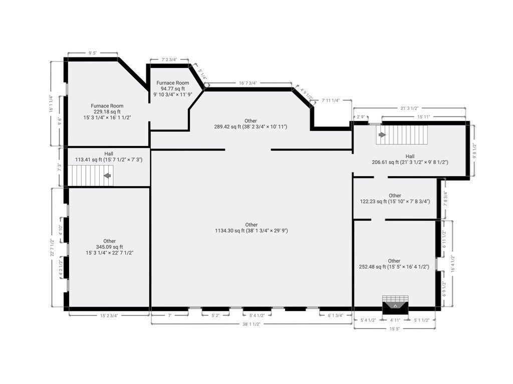
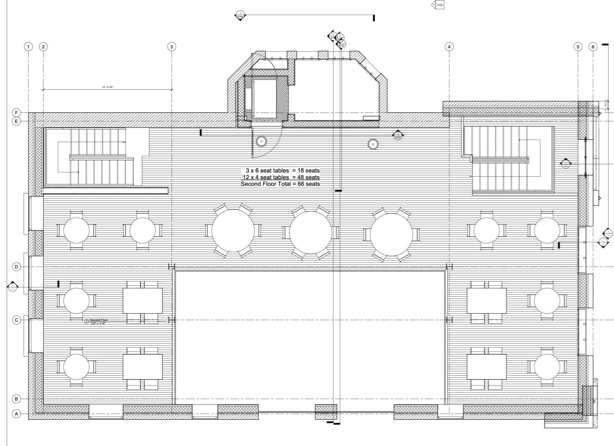
Presenting a unique opportunity to acquire a distinguished 7,000-square-foot building, which offers some of the most scenic views in Plymouth, Kingston, and Duxbury Bay. This property is perched atop Cole's Hill and provides panoramic vistas of Plymouth Rock, the Mayflower II, Long Beach, and the distant Saquish Beach. The "downtown harbor" zoning makes this property an exceptional investment for those looking to capitalize on Plymouth's thriving infrastructure. This zoning designation allows for a diverse range of uses, including but not limited to single and multi-family residential developments, an inn or hotel, a restaurant, office spaces, retail outlets, a historical museum, a cinema, and various other possibilities. Originally constructed as a church in 1903, this remarkable structure is characterized by its impressive brick and stone architecture, large stained glass windows, and ample parking. This is a rare chance to own a piece of America's hometown.

Property Details
For Sale

$2,000,000

  • County: Plymouth
  • Sq. Ft: 7294
Amenities
  • Public Transportation
  • Shopping
  • Park
  • Walk/Jog Trails
  • Golf Course
  • Medical Facility
  • Laundromat
  • Bike Path
  • Conservation Area
  • Highway Access
  • House of Worship
  • Marina
  • Public School
  • T-Station
Basement Feature
  • Full
  • Bulkhead
Beach Description
  • Bay
  • Harbor
  • Ocean
Beach Ownership
  • Private
  • Public
Construction
  • Brick
  • Stone/Concrete
Flooring
  • Wood
  • Hardwood
Heating
  • Gas
  • Other (See Remarks)
Lot Description
  • Corner
  • Scenic View(s)
Road Type
  • Public
  • Paved
Sewer And Water
  • City/Town Water
  • City/Town Sewer
Style
  • Gothic Revival
  • Victorian
Waterfront
  • Ocean
  • Bay
  • Harbor
  • Dock/Mooring
  • Walk to
  • Access
  • Marina
  • Public
  • Private
Waterview Features
  • Bay
  • Dock/Mooring
  • Harbor
  • Marina
  • Ocean
  • Private
  • Public
  • Walk to
Additional Information
  • Cooling: None
  • Foundation: Poured Concrete
  • Handicap Access: Unknown
  • Home Own Association: No
  • Lead Paint: Unknown
  • Parking Feature: Off-Street
  • Reqd Own Association: Unknown
  • Roof Material: Rubber
  • Sewer: City/Town Sewer
  • Sf Type: Detached
  • Warranty: No
  • Water: City/Town Water

Location

Seller's Representative:
Ryan Ahern
South Shore Sotheby's International Realty

© 2026 MLS Property Information Network, Inc.. All rights reserved.

The property listing data and information set forth herein were provided to MLS Property Information Network, Inc. from third party sources, including sellers, lessors and public records, and were compiled by MLS Property Information Network, Inc. The property listing data and information are for the personal, non commercial use of consumers having a good faith interest in purchasing or leasing listed properties of the type displayed to them and may not be used for any purpose other than to identify prospective properties which such consumers may have a good faith interest in purchasing or leasing. MLS Property Information Network, Inc. and its subscribers disclaim any and all representations and warranties as to the accuracy of the property listing data and information set forth herein.

MLS PIN data last updated at April 28th, 2022 10:36:53 AM EDT